Rendezvény | Hotel Kálvária

Rendezvényhelyszín Győrben – Hotel Kálvária****

A Hotel Kálvária – Győr kiváló választás minden típusú eseményhez: céges tréningek, meetingek, konferenciák, családi ünnepségek, sajtótájékoztatók és esküvők számára.

Professzionális környezet és felszereltség

Rendezvénytermeink modern technikai eszközökkel felszereltek: projektor, vetítővászon, flipchart tábla, WiFi, hangosítás (Kamillus terem).

Kizárólagos és korlátlan internet sávszélességet biztosítunk (max. 10 főig), függetlenül a hotel internetes szolgáltatásától mobilszolgáltatónk által. Díjról érdeklődjön ajánlatkéréskor.

Gasztronómiai kiegészítés

Az eseményekhez Carmen Éttermünk biztosítja a friss, helyben készült ételeket, akár a különtermekben is.


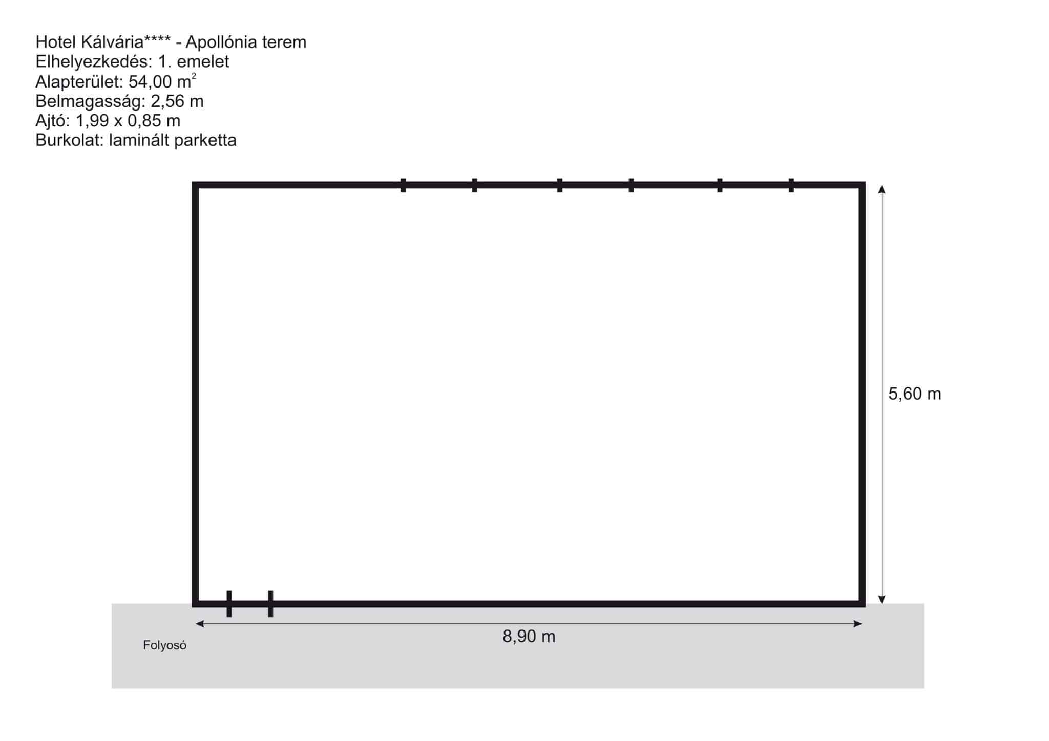
APOLLÓNIA TEREM

 


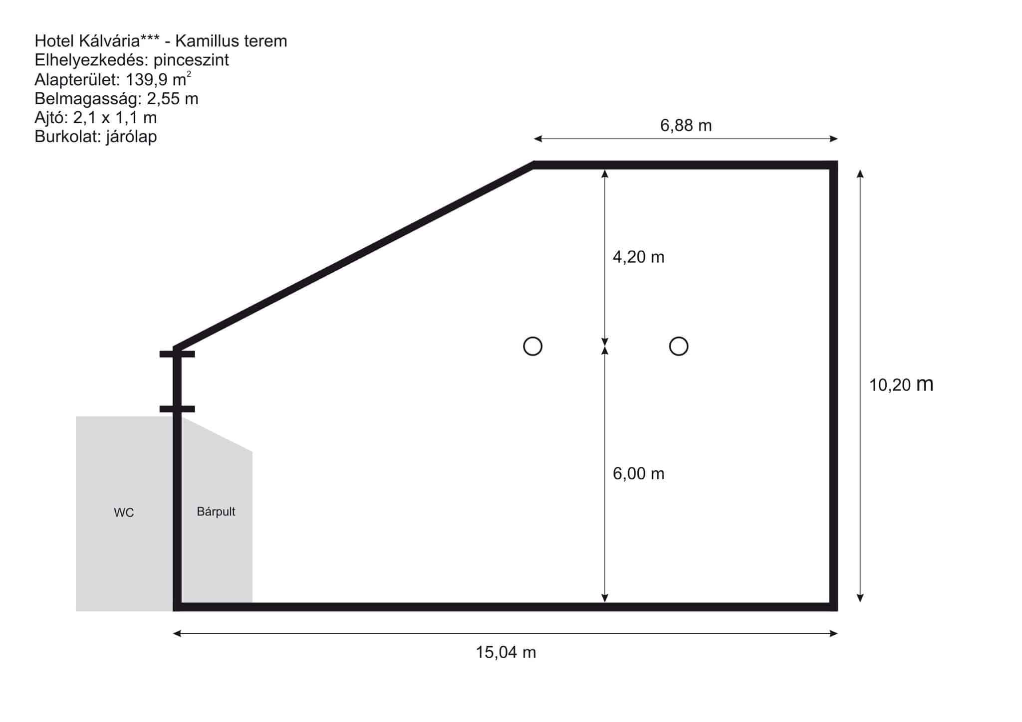
KAMILLUS TEREM


Szállodánk 4 csillagos épületében található, 25 fő befogadására alkalmas
 
A 3 csillagos épületben helyezkedik el, 55 fő befogadására kész

 

Tekintse meg a Carmen Éttermet

Kérjen rendezvény ajánlatot!